鸣北小区美式新古典实景大放送!
美式古典风格植根于欧洲文化,
简化了繁复,却强调了功能。
本案以现代的手法和材质还原了古典气质,
表现出不断更新的新古典主义特征——
一种不朽的、清晰的美。
古典与现代的双重审美叠加,
让人在充分享受物质满足的同时,
也得到精神上的慰藉。
地址:鸣北小区11#150*
面积:153㎡(三口之家)
设计师:许俊(品尚装饰)
软装搭配师:许俊(品尚装饰)
设计理念:用现代手法还原古
(先放张业主和设计师的合照,
保护业主隐私所以遮住了面部)
厚重而美观的家居
是美式风格的独特魅力
但如果是一个小而紧的公寓
如何让美式的氛围饱满呈现
这便是设计师功力的体现和彰显
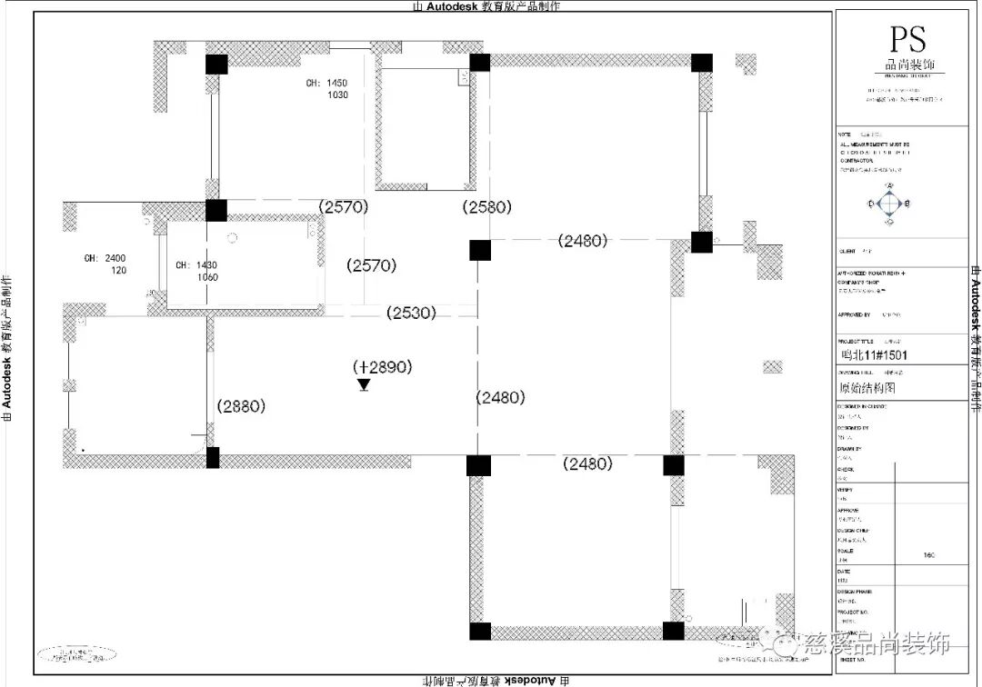
▲原始结构图
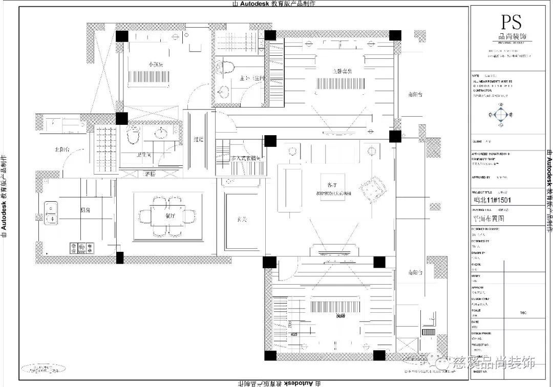
▲平面布置图,从图中就能看出超大南北阳台,主卧加上小孩房和次卧,两卫两厅还有衣帽间酒柜,150平方硬是设计出了180平方的即视感。
▲刚进门的玄关摈弃了巴洛克和洛可可风格所追求的新奇和浮华,建立在一种对古典的新的认识基础上,强调简洁、明晰的线条和优雅、得体有度的装饰。
▲沙发墙以边框造型,简洁干净,结合一套皮质沙发具有历史感的外形,搭配优雅复古的吊灯,在追求空间和谐统一的同时,表达出稳重内敛的精英气质和华而不奢的生活主张。
▲餐厅的餐桌椅与餐边柜都以独特的新古典风格为主,结合现代淡雅的空间基础,浪漫新鲜的花束,整体给人的感觉就是轻松而又稳重。
▲厨房的地面与墙面都用以干净的瓷砖铺垫,搭配上一个白色的橱柜,装扮出一个充满优雅与文艺气息的烹饪空间。
▲主卧凝聚了传统设计的精华,少了华而不实,提出一种更精致优雅的生活方式。造型别致的耳翼床代表了新古典主义的简约之美,精选的绅士西装面料软包,呈现十足的英伦范儿。灰色的背景墙搭配入墙式的白色衣柜,一整个家色调整洁而统一。
▲主卧厕所的墙面以蓝色地中海情调渐变造型的瓷砖张贴,充满海洋气息,显得更加精致富有情调。
▲小孩房让更为传统的样式与更为现代的艺术相融合,呈现出与众不同的新古典气质。优雅的孔雀蓝丝绒面料,兼具观赏性与实用性,营造出唯美梦幻的感觉。
▲另一个公用卫生间也是简洁大气为主,干湿分离的设计,让空间的功能分区更实用。
▲超大阳台摆上花草,素色瓷砖简洁干净,晚饭后站在高楼一杯茶看看夜景,身边有家人的嬉笑声和徐徐的风,神仙的生活也不过如此吧。
如果您近期有装修新房的打算,
无论大小户型、别墅都欢迎您
前来品尚装饰咨询、对比,
如果您想了解我们的施工工艺,
请联系15958268747(微信同号),
我们将在第一时间
安排专人带您去现场看我们的样板房,
查看最真实的施工及效果。










